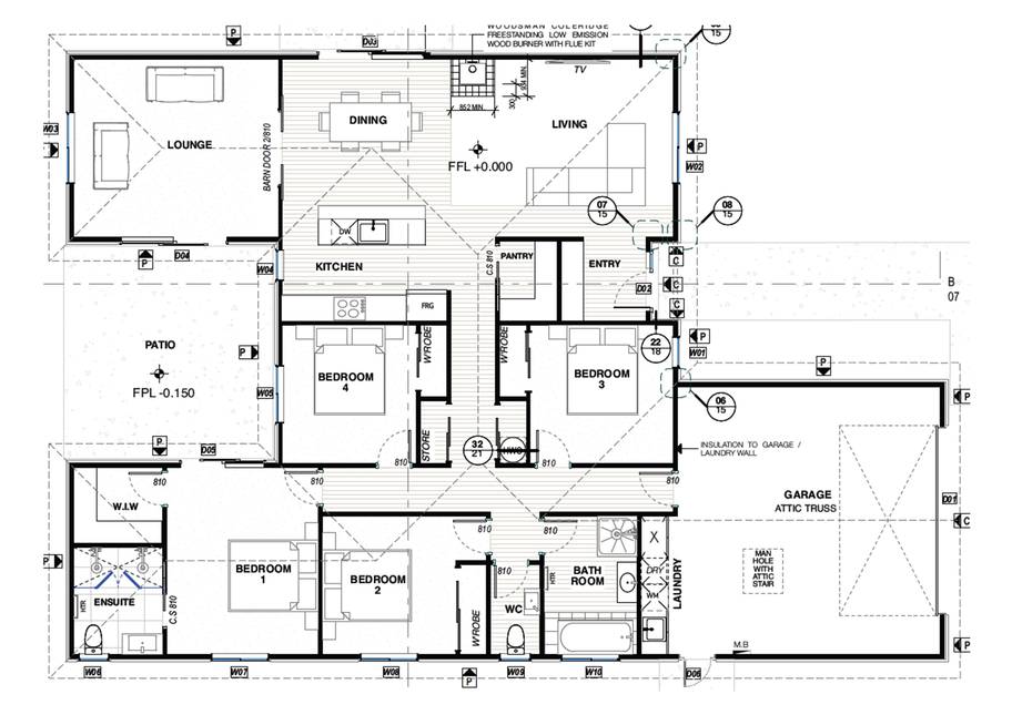
Currently under construction, this beautiful new build offers the ideal blend of style, space, and sunshine in a premium Methven location. Set on a generous section with a private, sunny backyard, this well designed home will feature four double bedrooms, including a spacious master suite with a walk-in robe and a luxurious ensuite with a double shower. Two living areas offers flexibility for families and entertainers alike, and the well-connected open plan kitchen, dining, and living space flows effortlessly to the outdoor entertaining area. The kitchen includes a walk-in pantry, and there's excellent storage thoughtfully integrated throughout the home. You'll love the sunny patio, cleverly tucked away at the rear of the home for privacy and shelter from the weather - a peaceful spot for year-round enjoyment. A double internal access garage includes the laundry, making everyday living easy and efficient. Located just minutes from Methven's town centre, schools and the Opuke Thermal Pools, this property delivers modern living with a relaxed alpine vibe. With completion in time for Christmas, this is your chance to secure a brand new home built with care, comfort and quality in mind. Get in early to have your own input into the finishes, fixtures and colour schemes. Call now! (Information sourced from RPNZ/Property Smarts and not verified)
Currently under construction, this beautiful new build offers the ideal blend of style, space, and sunshine in a premium Methven location. Set on a generous section with a private, sunny backyard, this well designed home will feature four double bedrooms, including a spacious master suite with a walk-in robe and a luxurious ensuite with a double shower. Two living areas offers flexibility for families and entertainers alike, and the well-connected open plan kitchen, dining, and living space flows effortlessly to the outdoor entertaining area. The kitchen includes a walk-in pantry, and there's excellent storage thoughtfully integrated throughout the home. You'll love the sunny patio, cleverly tucked away at the rear of the home for privacy and shelter from the weather - a peaceful spot for year-round enjoyment. A double internal access garage includes the laundry, making everyday living easy and efficient. Located just minutes from Methven's town centre, schools and the Opuke Thermal Pools, this property delivers modern living with a relaxed alpine vibe. With completion in time for Christmas, this is your chance to secure a brand new home built with care, comfort and quality in mind. Get in early to have your own input into the finishes, fixtures and colour schemes. Call now! (Information sourced from RPNZ/Property Smarts and not verified)